Tag: Balham

04
May

An new feature wall to an Art Deco flat.

 Art Deco Refurbishment | Architects for Wandsworth | Balham, South West London

forresterarchitects have completed a stunning refurbishment of a third-floor Art Deco flat located in a prestigious mansion block in Balham, South West London. The flat’s existing configuration was largely functional but presented some issues that needed to be resolved, and were tasked with finding solutions that would improve the space’s functionality and aesthetic appeal.

One of the key features of the new design is a striking feature wall that provides a central focus for the flat. This wall can be easily circumnavigated to access the new kitchen layout and the reconfigured bathrooms, which were a priority for the client. The wall is not only a visually striking element of the design but also helps to divide the space into different zones, providing a sense of privacy and separation where needed. forresterarchitects worked closely with the client to create a new layout that would maximise the flat’s potential and address the issues that had been identified. The new design is not only functional but also aesthetically pleasing, with a contemporary feel that complements the Art Deco features of the building.

 The project has breathed new life into the flat, and the addition of the feature wall provides a striking focal point that adds a touch of elegance and sophistication to the design. The new layout also offers improved functionality, making the flat more practical and user-friendly for its occupants. The Art Deco flat in Balham now offers a perfect balance of style and functionality, providing its occupants with a beautiful and practical home that meets all of their needs.

01
Jun

Reconfiguration to a fine Art Deco mansion block in Balham.

Mansion Block Refurbishment | Architects for Wandsworth | Balham, South West London

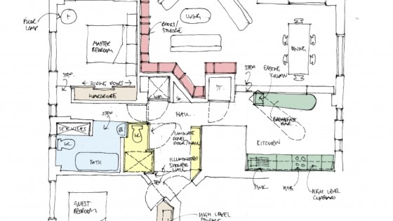
forresterarchitects has submitted a remodelling proposal for a mansion block refurbishment in a prestigious Art Deco building located in Balham, South West London. Although the existing configuration was deemed acceptable, some issues were problematic and needed to be resolved, which is why the proposal was made. The main priority for the client was to address the kitchen layout and reconfigure the bathrooms.

The mansion block refurbishment proposal aims to address the issues by reconfiguring the layout of the building. forresterarchitects plan to create a new kitchen layout and reconfigure the bathrooms, which are a priority for the client. The current layout was deemed acceptable, but certain problems needed to be addressed. forresterarchitects has proposed a remodelling solution that will resolve these issues. forresterarchitects proposal focuses on improving the existing layout of the mansion block to provide the client with the best possible living space. The architects will work with the client to create a design that will meet their specific needs and requirements. The design will also consider the building’s unique Art Deco style and maintain its historic significance while incorporating modern amenities and technology. The mansion block refurbishment proposal is a testament to forresterarchitects ability to blend functionality with aesthetics. forresterarchitects is renowned for its expertise in designing projects that meet the unique needs of clients while taking into account the local context and heritage of the area. Forrester Architects’ experience in remodelling mansion blocks and other historic buildings makes them the ideal partner for this project.

Overall, the proposed mansion block refurbishment in Balham, South West London, aims to address the issues that the client has with the existing configuration. By reconfiguring the layout of the building, forresterarchitects will provide the client with a new kitchen layout and reconfigured bathrooms. The design will also respect the building’s Art Deco style and incorporate modern amenities and technology, resulting in a functional and aesthetically pleasing living space.